We provide MEP BIM, VDC, and CAD services that convert engineering intent into accurate, coordinated, and installation-ready models. Our team delivers MEP 3D modeling, BIM coordination, clash detection, shop drawings, spool drawings, 2D drafting, P&ID diagrams, isometric drawings, as-built documentation, and point-cloud–based MEP modeling. Every deliverable is aligned with your design standards, system specifications, and installation requirements to ensure smooth coordination across all project trades.
Our BIM-led MEP workflow improves system routing, identifies conflicts early, and enhances constructability compared to traditional 2D processes. Equipment layouts, ductwork, piping, conduits, cable trays, and supports are all modeled within the same coordinated environment, reducing installation clashes, RFIs, and rework. From design through fabrication and on-site execution, our MEP BIM services enable faster approvals and predictable project delivery.
Our MEP BIM / VDC Services
MEP 3D Modeling
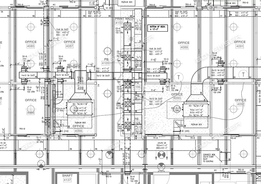
MEP 3D Modeling includes accurate modeling of HVAC ducts, piping, electrical raceways, plumbing systems, fire protection networks, cable trays, equipment, supports, and hangers. Models follow engineering design intent and LOD standards to support coordination, shop drawings, and installation planning.
BIM Coordination
BIM Coordination aligns HVAC, plumbing, fire protection, and electrical systems with architectural and structural elements. Conflicts are resolved through coordinated routing, clearance checks, and system-level adjustments, ensuring a clash-free model suitable for installation.
Clash Detection and Resolution
Clash Detection identifies conflicts between MEP systems and other disciplines using Navisworks or similar tools. Detected issues are resolved through iterative coordination meetings, updated routing, and revised layouts that improve overall constructability.
MEP Shop Drawing
MEP Shop Drawings include detailed layouts for ducts, piping, conduits, cable trays, equipment connections, risers, supports, and sleeves. All drawings are extracted from the coordinated model, ensuring accuracy during fabrication and field installation.
Piping Spool Drawing
Piping Spool Drawings break down piping systems into fabrication-ready segments. These drawings include weld locations, flange details, fitting specifications, BOMs, and assembly instructions that streamline prefabrication and on-site installation.
MEP 2D Drafting
MEP 2D Drafting provides clean CAD drawings for HVAC, piping, electrical, plumbing, and fire protection systems. Drawings follow client CAD standards, ensuring clarity for contractors, consultants, and permitting authorities./p>
Quantity Take-Off
Quantity Take-Off extracts material quantities for ducts, pipes, valves, hangers, fittings, conduits, cable trays, and equipment. Quantities are derived directly from the MEP model and structured for budgeting, procurement, and cost planning.
P&ID Diagrams
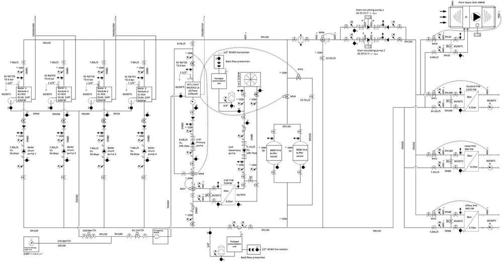
P&ID Diagrams include process flow diagrams, instrumentation layouts, valve tags, equipment symbols, line numbering, and control system representation. These diagrams are prepared to match project templates and process requirements.
Dynamo for Revit MEP
Dynamo for Revit MEP enables automation for repetitive modeling tasks, parameter population, hanger placement, system validation, and model cleanup. Custom scripts increase modeling speed and improve consistency across models.
Isometric Drawings
Isometric Drawings are generated for piping systems to show direction, elevation, fittings, valves, and connections. These drawings support fabrication, installation, and site coordination.
Mechanical CAD Services
Mechanical CAD Services include 2D and 3D drafting for HVAC, mechanical equipment layouts, ducting plans, fabrication details, and mechanical room layouts using client CAD standards and specifications.
As-Built Drafting
As-Built Drafting incorporates field changes, redlines, RFIs, and final installed conditions into updated CAD or BIM drawings. These records are essential for facility maintenance, future upgrades, and accurate documentation.
Scan to BIM (MEP)
Scan-to-BIM converts point-cloud data from laser scans into precise as-built MEP models. Ducts, pipes, conduits, valves, equipment, and supports are modeled accurately for renovation, retrofitting, and facility documentation.







